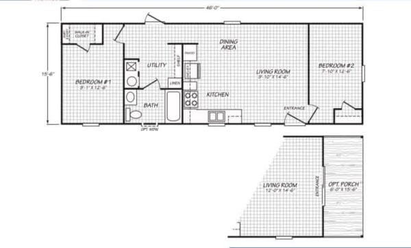
FLOOR PLAN

Welcome to “The Revolution”
Step into the future of manufactured housing. “The Revolution” is a fresh-built 2025 model that perfectly balances cutting-edge exterior aesthetics with incredible interior luxury. Offering 3 bedrooms and 2 bathrooms within a highly efficient 16×80 footprint, this home is designed for buyers who refuse to compromise on modern style or energy savings.
Striking Modern Curb Appeal
Make a statement before you even walk through the front door. The Revolution breaks away from traditional mobile home designs by featuring highly sought-after Dark Mode Eves and Windows. This sleek, high-contrast exterior trim gives the home an aggressive, modern architectural profile that stands out on any lot.
The E-Built Advantage: Smart & Efficient
This home isn’t just beautiful; it is engineered to save you money.
-
E-Built Low Energy Package: Experience the gold standard in climate control and efficiency. This comprehensive energy package drastically reduces utility costs, ensuring your home stays perfectly comfortable year-round while minimizing your carbon footprint.
-
Maximum Durability: Fully OSB Exterior Wrapped, this model offers superior structural rigidity, wind resistance, and sound dampening compared to standard builds.
Interior Luxury & The Glamour Bath
The 1,216 square feet of living space revolves around premium upgrades. The kitchen boasts a full suite of stainless steel appliances, perfect for everyday cooking and entertaining.
However, the true centerpiece of The Revolution is the master suite’s Glamour Bath. Designed as a private daily retreat, this spa-like bathroom offers upgraded fixtures, massive vanity space, and a stunning aesthetic that rivals luxury site-built homes.











































